Children categories
Секционные промышленные ворота (0)
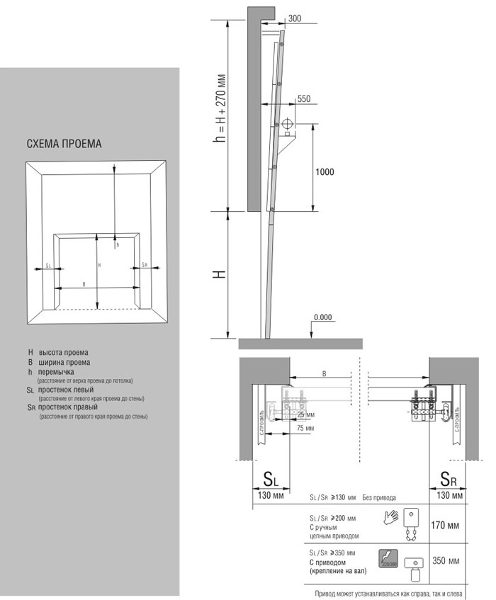
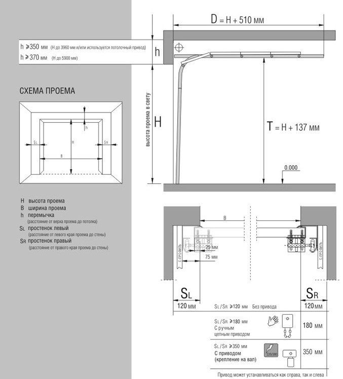
Секционные промышленные ворота
Данные промышленные ворота изготавливаются из сэндвич-панелей (сталь - полиуретан - сталь) толщиной 40 мм и высотой 500 и 610 мм. Площадь таких ворот может достигать 50 кв.м.
Фурнитура ворот выполнена из оцинкованной стали и предназначена для интенсивного режима работы. Торсионные пружины рассчитаны для работы до 25, 50 и 100 тыс. циклов.
Ворота были отмечены знаком CE, что означает соответствие высочайшим стандартам ЕС. Испытания ворот проводились в Швеции в лаборатории "SP Proving Forskining".
Разработано несколько типов подъёма ворот, позволяющие установить их в проёмы большинства помещений различных конструктивных особенностей, но, по желанию клиента, могут быть изготовлены и специальные, нестандартные типы ворот.
Все производимые ворота комплектуются:
- паспортом изделия;
- инструкцией по эксплуатации ворот;
- актом сдачи ворот в эксплуатацию;
- гарантией на изделие;
- оклеиваются предупреждающими этикетками.
позволяет унифицировать параметры производимых сэндвич-панелей, выпускать монолитные панели с высокими характеристиками наполнения вспененным полиуретаном высокой плотности и добиться лучшего соединения материала с внешней оболочкой.Панели изготавливаются длиной до 14 метров. Благодаря таким размерам, стало возможным производить ангарные ворота непрерывным по ширине полотном, на всю длину, без соединений и стыков.
СОСТАВ ПАНЕЛИ:
1. Пенополиуретан
2. Сталь
3. Слой цинка
4. Грунт
5-6. Декоративно-защитное покрытие*
*двойное покрытие пленкой для панелей
под дерево.
10 лет гарантии от
сквозной коррозии
Цвета, которые Вы видите на мониторе Вашего компьютера, могут не совпадать с действительностью.
Варианты установки
Панорамные промышленные ворота (0)
Панорамные промышленные ворота
Панели ворот изготавливаются из анодированного алюминиевого профиля с акриловым стеклопакетом. Окрашиваются панели по палитре RAL. Полотно ворот комплектуется из панорамных панелей и одной нижней - из сэндвич-панели, как правило белого цвета, но по желанию клиента возможны и другие варианты комплектации полотна ворот.
Панорамные ворота чаще всего применяются на промышленных предприятиях: в автоангарах, ремонтных депо, на автомойках, ремонтных мастерских. Стоит заметить, что в последнее время панорамные ворота стали устанавливать в частных загородных домах. Они очень стильно смотрятся не только в гараже, но даже в интерьере дома. При установке в фасаде дома, ворота напоминают стену из стекла - от пола до потолка, тем самым заменяя стеклопакет. Стоит также отметить, что вариантов их исполнения и расцветок предлагается великое множество.
Панорамные секции изготавливаются из алюминиевого профиля двух видов: утёплённого и неутеплённого. Утеплённый профиль оснащён специальными вставками внутри, которые отделяют внешнюю часть профиля (уличную) от внутренней (помещение).
Также в ворота, в любом ряду секций, кроме верхнего, может быть встроена калитка стандартной шириной 840 мм. Открывается наружу. Комплектуется замком с ручкой, ключами и линейным доводчиком.
Варианты установки
Другие промышленные ворота (0)
Другие промышленные ворота
Вентилируемые ворота (0)
ВЕНТИЛИРУЕМЫЕ ВОРОТА
Ворота модели TLT предназначены для использования в подземных гаражах, а так же в тех местах, где требуется хорошая вентиляция помещения. Перфорированная стальная поверхность полотна ворот обеспечивает достаточное проникновение воздуха, придаёт воротам максимальную устойчивость и надёжность.
Стандартно панели изготавливаются из усиленного анодированного алюминиевого профиля шириной 40 мм, а промежутки из перфорированного листового металла. Размер ячеек может быть как 5, так и 10 мм.
Вентилируемые секции могут сочетаться как с остекленными секциями TL-full view, так и с секциями из сендвич-панели в различных вариантах.
Также в вентилируемые ворота может быть встроена калитка.
МЕГА-ворота (ангарные) (0)
МЕГА-ворота (ангарные)
МЕГА-ворота - это секционные ворота, откатные ворота больших размеров, которые значительно превышают принятые размеры ворот. Для таких ворот применяются усиленные конструкции, пружины и комплектующие, способные выдерживать вес ворот, возрастающий с увеличением размера ворот.
Мы производим ангарные ворота следующих типов:
- подвесные откатные телескопические ворота;
- откатные секционные ворота (SSD);
- распашные ворота;
- секционные подъёмные ворота;
Каждый тип ворот подходит под определённую ситуацию, поэтому наши специалисты помогут подобрать тот тип ворот, который обеспечит Вам наилучшие показатели сохранения тепла, удобства обслуживания и функциональности.
Наши ворота могут устанавливаться с применением прочных алюминиевых панелей и особых усиленных систем привода, так как размер ангарных ворот большой, а стандартные системы подъёма полотна не предназначены для ворот, вес которых может достигать 1000 кг.
Благодаря уникальным разработкам конструкторов и инновационным материалам, мы можем производить секционные ворота площадью более 120 кв. м.
- Откатные - по стенам в две стороны;
- Откатные - пролётами вдоль фасада (друг за друга).
- Комплектующие производятся из высококачественной оцинкованой стали;
- Распашные ворота автоматизируются при помощи автоматики BFT.
Секционные ангарные ворота - это наиболее удобный и практичный вариант ангарных ворот. Для их производства используются тёплые панели, вспененный полиуретан высокой плотности оцинкованной стальной обшивкой и полимерным верхним покрытием для защиты от выцветания и воздействия агрессивных сред.
Для большинства нужд идеально подходят панели толщиной 40 мм, 80 мм хорошо подходит для холодильных камер и других мест с повышенным вниманием к теплосбережению. По периметру ворот устанавливается особой формы уплотнитель, которые препятствует попаданию ветра или осадков в помещение. Нижняя кромка, снабжённая уплотнителем, также выступает в роли амортизатора.
Ультра утеплённые ворота (0)
Ультра утеплённые ворота
Ультраутеплые промышленные ворота разработаны специально для поддержания температуры в обогреваемых помещениях, оборудованных холодильными установками. Превосходные показатели в 0.5 W/mK достигаются за счёт термомоста между внутренним и внешним стальным листом, панели толщиной 80 мм, полиуретанового наполнителя высокой плотности и двойного резинового уплотнителя нижней кромки.
Стоит учесть, что данный тип ворот имеет следующие ограничения: максимальная ширина 12 метров, максимальная высота 8 метров, максимальная площадь 70 кв. м.
Варианты управления:
- Цепной механизм;
- Электроприводы.
Опции безопасности:
- Защита от обрыва троса;
- Защита от обрыва пружин;
- Другие опции по запросу.
- Сталь;
- Цинковое покрытие;
- Грунт;
- Полимерное покрытие;
- Лакокрасочное покрытие.

Юридическое лицо:
ООО “Калдора”
Республика Беларусь
212030 г.Могилев
ул. Ленинская 7а-офис12

Юридическое лицо:
ООО “Калдора”
Республика Беларусь
г. Минск, Боровляны
ул.40 лет Победы д. 23А офис продаж
Контакты:
309-51-09
309-51-09
309-51-09
309-51-09Email: info@wamport.by
Контакты:
309-51-09
309-51-09
309-51-09
309-51-09Email: info@wamport.by
